НР4-32.27.35-1бл-1

Чертеж изделия:
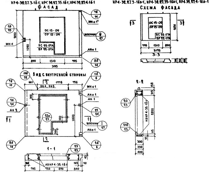
Чертеж НР4-32.27.35-1бл-1
Характеристики изделия:
ПараметрЗначение
Длина3195 мм
Ширина350 мм
Высота2650 мм
Масса2830 кг
Нормативный документСерия 1.132-1

НР4-32.27.35-1бл-1   Наружная стеновая панель рядовая по Серии 1.132-1.